智在舍得BIM算量(REVIT平臺)自發布以來
就一直受到業內各方關注
我們的后臺每天都會收到大量
前來咨詢基于Revit平臺算量軟件的留言
而今天,我們就決定為大家揭開
最新版智在舍得BIM算量(REVIT平臺)
的神奇面紗!
趕快來了解一下吧!
01
超越傳統算量,飛一般的計算速度
有客戶表示,在使用晨曦BIM算量前
他的畫風是這樣的——
用了智在舍得BIM算量后
他的感受是這樣的——
土建V5.0.0.0版計算速度提升至10倍以上
工程量計算
快!準!
敢與傳統算量軟件一較高下!
土建計算
鋼筋柱、墻、梁、板等主體構件
鋼筋布置速度提升至2倍以上
鋼筋工程量更精確
鋼筋計算
02
真正的BIM算量!
模型可不斷復用,再也無需反復建模!
從“設計-算量-平臺”等多個階段上
輕松完成數據互通
![]()
智在舍得BIM算量數據可
直接應用于BIM管控平臺
03
輕松入門如何算
土建:新增計算項目的計算規則說明和部位預覽圖
土建部位預覽圖
鋼筋:新增每個計算規則的來源和規范

鋼筋節點設置
04
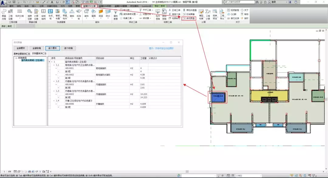
快速查量,便捷核量
土建:1. 添加選擇房間可以同時查看天棚、墻面等裝飾工程量
2.區域查量,框多少出多少

房間算量
鋼筋:區域布筋和出量,框多少出多少

區域算量
05
添加工程臺賬,自動收納rvt、數據庫文件 ,
再也不怕數據丟失啦

06
明確操作,降低門檻
土建:優化土建所有功能的操作提示
鋼筋:1. 優化每個鋼筋功能操作的提示語內容;
2. 鋼筋翻模添加轉化未成功的原因提示和解決方法;
3.提升柱大樣和梁鋼筋識別率
“
不同于傳統算量
基于Revit平臺研發的智在舍得BIM算量
每一項都是用心制作
更注重用戶自定義需求
數據互通,打通上下游
傳統算量難以突破的復雜模型
智在舍得BIM算量結合Revit
就能任意創建各種異形建筑模型
并在未來突破任意異形構件的算量
”
07
靈活調整,滿足工程需求
土建:可自由組合構件的計算規則扣減項,提供盡可能多的計算規則方案讓你靈活選擇

鋼筋:可選擇多種計算設置和節點設置
08
新增土建/鋼筋算量流程展示功能,
1秒讀懂如何出量
土建算量流程
鋼筋算量流程
09
添加圖形構件直接進行構件分類,
構件配色,輕松辨認構件
選圖分類

構件配色
10
添加多項實用技巧,調整方便
土建:添加構件分類、布置房間、計算設置等功能的使用技巧
鋼筋:添加梁跨重組、通用工具、板筋/筏板筋布置、鋼筋定義等功能的使用技巧
11
類型添加,解決需求
土建:1. 構件分類中添加雙擊構件名稱,定位其在圖形中的位置;
2. 添加輪廓墻體的計算,滿足異形墻的計算;
3. 添加柱墻梁板模板是否按支撐高度區分工程量;
......
鋼筋:1. 新增梁復合箍的箍筋肢數編輯及實體鋼筋計算;
2. 新增砌體墻遇異形柱的砌體墻拉結筋布置和計算;
3. 新增鋼筋長度明細表、構件匯總信息明細表等新類型報表;
......

鋼筋Revit提量
智在舍得BIM算量,還不止這些優點哦~
撥打下方電話,進一步咨詢了解! 13875977181(宋智勇)
傳統算量能做的,我們也能做到
傳統算量做不到的,我們還能做到!







2025-05-19
13206
4006-258-995